Multiple new attractions are now be permitted to be added to Epic Universe, in addition to the park’s new event space already under construction. But new land clearing has just started outside of the park, in a large plot of land along Universal Boulevard. What will this nearly 90 acre plot of land be used for, and why is it being prepared for development now?
Let’s go over permit details and the latest construction happening in and near Epic Universe, in today’s news update. See the video version of this story below for additional visuals.

Recent aerial view of Epic Universe, All Aerial Photos by @Bioreconstruct
Epic Universe Construction
Looking around the current state of Universal Epic Universe, there are smaller concrete projects all around the park. More than a year since preview for the new park began, the park is seeing these minor refreshes in all areas.

Sections of courtyards are currently blocked off by walls while this work is ongoing, like here near the entrance, seen above, or in the courtyard in front of Constellation Carousel, seen below.

The multi-purpose event space construction is moving along, with the first steps for foundations happening now.

Connections for structural supports and other bases are being poured ahead of pouring for the floor itself.

The thin strip in the center of the next photo will be for a wall that separates the main event space from the back of house kitchen areas.

Work on the fireworks launch pad behind the park appears to be wrapping up. Work on the secondary launchpads on the sides of the park has yet to be completed though.

Fireworks launchpad at center of pond behind Epic Universe
Permits related to the upcoming expansion to the Wizarding World are now marked as “Ready to Issue.”

This is for the construction of a massive 150,000 square foot new attraction, expected to be within the highlighted area of the land seen below.

Permit image for area with labels added for expansion
The final reviews of the submitted permit plans were given at the end of February, so all that’s required now is the fees are paid before they become active.
The permits have been updated and now say that the structure will only be one story tall, but we are not sure if that is final at this time.

Permit showing structure to be 1 story, Orange County Government
Stardust Racers has reopened after an extended maintenance-related closure. The company had put out an official statement saying the attraction was undergoing its first annual planned inspection, but the announced reopening date was pushed back several times.

Official statement from Universal Orlando, Source: Ashley Carter
Universal also said they’ve made additional capacity throughput enhancements for the coaster, which extended the temporary closure period. After nearly five weeks, Stardust Racers is now back to regular operation.
Until this week, these were the main stories we were following for Epic Universe, until a new permit posted.

Expansion spaces near Dark Universe and Nintendo areas
New Permit for Future Attraction
A new permit was posted on March 23, 2026 for site work within the Epic Universe parcel. It did not specify where within the park, but the parcel includes only the theme park itself, and not backstage areas.
When it first posted, the full description was: “Mass grading, utility points of connection, and re-routes for early work purposes of a future attraction known as Project 680.”
Project 680 will be a new project number we have not seen before. The upcoming Potter expansion is listed as Project 987.
This new permit is also the first time we have seen the words “future attraction” used in a new permit for Epic Universe since it opened last year. Even the Potter expansion permits simply refer to it as site work and foundation work.
Unlike the Potter permits however, this new permit does not list a square footage for the project. So, in addition to not knowing where in the park it will go, we also have no idea of how large it will be.
Project 680 is somewhat unusual for the park, as so far all project numbers within the park have begun with the number nine. That includes all of the initial project numbers for each of the lands, like 901 for Celestial Park, 902 for Dark Universe, 903 for How to Train Your Dragon, 904 for Super Nintendo World, and 905 for Wizarding World.
Even newer projects have still begun with nine, like the events space as Project 915
The fireworks launchpad behind the park however, broke tradition, with a project number of 247, so it’s possible going forward new projects can start with other numbers.
As to why Project 680? One clue may be an older project designation for a formerly canceled project.
When Zelda concepts were being pitched to replace Lost Continent years ago, the artists submitting concepts included a project number with them, Project 675.
Of course, none of those early concepts were greenlit, and Project 675 was never utilized as a project number.
Now this is only speculation, but perhaps Project 680 at Epic Universe is utilizing this number because it is related to a new variation of a Zelda project?
Could a Zelda expansion for Super Nintendo World be next for Epic Universe?
The only other rumored area expected to receive a new attraction in the coming years is the expansion plot for Dark Universe. This is separate from the expansion plot next to Super Nintendo World, and is located directly behind the Dark Universe area.
It’s worth keeping in mind that the permit listed work as early preparation for a future attraction, so this could simply be the first steps to prepare land and we could still be a ways away from actual construction.
Whether for more Nintendo or an expansion to Dark Universe, modular offices would need to be relocated before work could begin, as both areas contain temporary structures at this time.
It’s also worth noting that later the same day when this permit first posted, and after it was discovered by journalists and fans, the project description was changed to just “Site Work.”
And then the permit was pulled completely, and if you try to search for it now nothing comes up.
Maybe it was posted to soon. Maybe there’s something incorrectly listed on it.
Whatever the issue, they were quick to update the description once fans noticed it originally said “Future Attraction,” and that’s pretty exciting.
West Parcel Mass Grading Project
A project that has actually started, and probably sooner than many of us expected, is work happening on the West Parcel Mass Grading Project.
This section of land, located along Universal Blvd, near the Top Golf and Andretti Indoor Karting & Games locations, is seeing the first stages of land prep happening now.

Aerial photos by Bioreconstruct show recent land clearing
Current permits are for the grading of a 35 acre section along the south side of the parcel. Permits say this work is to “support the future development on an 87.2 acre parcel along Universal Boulevard.”
Below is an image showing the full scale of the complete parcel set aside for future development.
As you can see it is located just west of Epic Universe, which is located on the right side of the image.
Not only has land clearing been going on in this southern section of the parcel, but a mesh material is being laid down as well.
A section of trees and bushes have been retained to help separate Universal’s property from the nearby Top Golf. It looks like this strip of land will remain untouched, at least for now. However, permit communications with the county explain Universal’s plan eventually includes the removal of all trees within the property.
But the rest of the trees are appearing to be removed, with that mesh material being laid onto the flattened land.
Permits were recently approved for fill to be brought in as well, to help shape the land as needed for this project.
Dated March 10, 2026, this permit approves the import of approximately 175,000 cubic yards of clean fill material to the property.
In a section of the property slightly more north than where the land clearing is happening, we can spot orange barricades wrapped around existing infrastructure.
This area in the middle of the parcel has things like utility connections and existing drainage measures marked off to make them more visible when the next phases of work are set to begin.
While this initial mass grading work is happening on the southern tip of the land, we can see in the photo below how the parcel continues north, reaching all the way to across the street from the Orlando Eye.
The large, nearly 90 acre parcel owned by Universal is located just on the other side of Universal Blvd from the back entrance to the Orlando Eye’s entertainment plaza, ICON Park.
The yellow arrow in the photo above is pointing at the northern part of the Universal Orlando Resort, located a couple miles north of here, where the older theme parks and CityWalk are located.
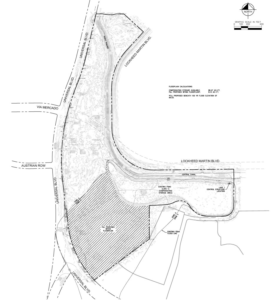
According to plans, filed with the South Florida Water Management District, the full project site includes the drainage pond that runs behind the Top Golf area.
The plans call for updates to drainage throughout the project site, to prepare it for development.
The work we are seeing now is part of the Overall Erosion Segment Control and Mass Grading Plan, as seen here.
This is also the area where the fill that is being delivered will be utilized, which may raise the land once completed.
Possible Transit System Connection
Seeing this work happening now, many are wondering what the ultimate plans will be for this large parcel of land.
The actual theme park areas of Epic Universe itself aren’t much larger than this nearly 90 acres that have been set aside at the West Parcel.
Could we see this parcel utilized as a new water park, or a Universal Kids park, or maybe some sort of complex of hotels?
With its location along Universal Blvd, located roughly between Epic Universe and the Endless Summer Resort, this West Parcel is prime real estate for some sort of midway transit hub for Universal Orlando.
Universal’s special district, the Shingle Creek Transit and Utility Community Development District, is working on a new transit system now. They are currently in negotiations with The Boring Company to create a system that connects the various sites of the resort together, via tunnels and other means.
Could this west parcel become a hub for the upcoming transit system?
While we do not have the proposed plan yet for Boring’s tunnel system, we have seen a proposal by another company for their version of the transit system, which could give us an idea of what the district is looking for.
This proposed plan, submitted by Sunshine Partners, would have had the transit system run along Universal Blvd. It would have passed right through this large plot of land on its way between the southern resort areas, like Epic Universe and surrounding hotels, and the northern resort areas, including CityWalk and the older parks.
Of course the site is much larger than would be needed just for a transit hub, so perhaps we could see this parcel become another entertainment complex.
There have been rumors for years that Universal has wanted to compete with some of the local I-Drive offerings, bringing their own dining and entertainment venues to the immediate area surrounding the Convention Center.
Plus, if they were to build a new CityWalk-like area here, instead of attached directly to Epic Universe, it would free up more space for a future fourth theme park connected to Epic later someday. That could be accomplished by utilizing the flat parking lot space as part of a new park after building garages across the street.
This is all speculation, but with a parcel of this scale, whether for hotels or something more substantial, it’s definitely worth keeping an eye on.
The current permits we have seen for this project are for water drainage, and they list the expiration date as five years from when it was issued. That means they have until December 15, 2030 to complete the project.
That’s all for now, but check out our recent update on the Fast & Furious drifting coaster being built now at Universal Studios Florida. See the video version of this story for additional visuals. Big thanks to Bioreconstruct for sharing all of the aerial photos and more seen in this story.

Aerial Photos: Bioreconstruct
Subscribe to the news feed or enter your email address below to never miss an update. Plan Images: Orange County Government Permitting Office & South Florida Water Management District | Aerial Photos: Bioreconstruct | Graphics: Alicia Stella | Other Images as Captioned
Subscribe to Receive Email Updates
Consider supporting us on Patreon for as little as $1/month. All patrons receive behind the scenes posts and exclusive podcasts. Learn More
Discover more from Orlando ParkStop
Subscribe to get the latest posts sent to your email.







































0 Comments